Portfolio of Bruce Allen Williams

EILAN

Criterion Development Partners | San Antonio, TX | 5 Story Split Level Buildings | Type 5A Construction | 330 Units | Documented in Revit


Extremely steep grading and height restrictions were a major concern for this eclectic San Antonio neighborhood with Overland Partners heading the design board. We were able to maximize site density and minimize construction cost by splitting all buildings a full level while establishing a basement level in order to allow these 5 story buildings to be built as Type V construction. Splitting the buildings a full level also allowed us to minimize the cut/fill needed on this steeply sloped site.


I set a clean Mediterranean design language which the client approved early on though the Architectural board asked for the addition of arches along the base of the main entry.



After designing this in Sketchup and rendering in Lumion, I managed a team of 1 to model and produce construction exhibits for this project. Construction is scheduled to be complete late 2024.

Renderings

Modeled in Revit | Rendered in Lumion

Main Entry Perspective

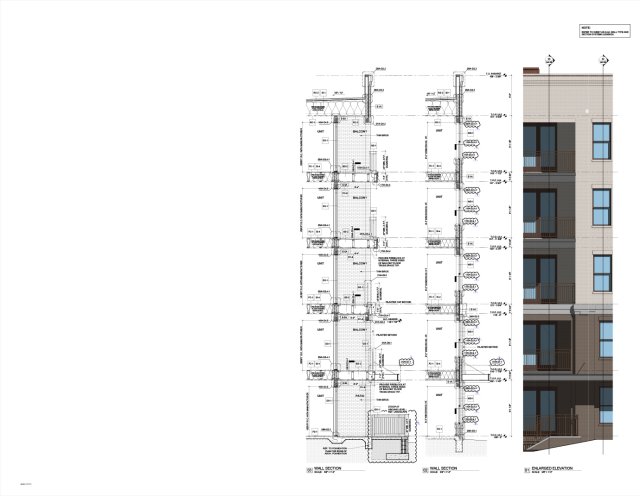
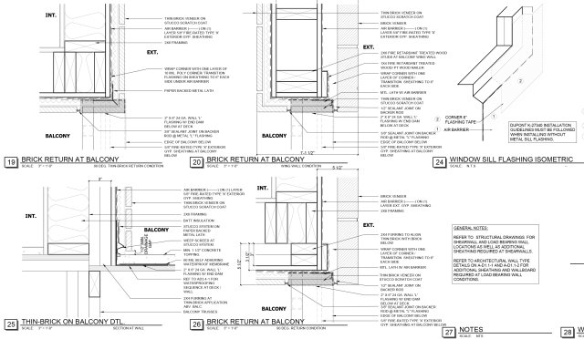
Construction Drawings

Documented in Revit

click to enlarge

SITE PLAN

BUILDING 3 ELEVATIONS

EXTERIOR WALL SECTIONS

BUILDING 1 ELEVATIONS

BUILDING 3 ELEVATIONS

EXTERIOR WALL SECTIONS

BUILDING 1 ELEVATIONS

TYPICAL INTERIOR WALL SECTIONS

BALCONY DETAILS