Portfolio of Bruce Allen Williams

AUGUSTA LOFTS

Stillwater Development | San Antonio, TX | 5 Story Wrap and Podium | Types 3A & IA Construction | 324 Units | Documented with AutoCAD


A bit of special attention was needed to design to the tight lot lines on this project. A narrow ventilation court was added in order to allow for a naturally ventilated garage. Fortunately the client approved the addition of a podium in order to keep the ground level amenity areas open.


I managed a team of 2 to design and produce construction exhibits for this project but moved on to start Mueller III after issuing this one for Permit.

Renderings

Modeled in Sketchup | Rendered in Lumion

click to enlarge

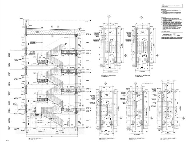
Construction Drawings

Documented in AutoCAD

click to enlarge

STAIR PLANS AND SECTION

TYPICAL INTERIOR WALL SECTIONS

TYPICAL INTERIOR WALL SECTIONS

EXTERIOR WALL SECTIONS

STAIR PLANS AND SECTION

EXTERIOR WALL SECTIONS