Portfolio of Bruce Allen Williams

Sedona Assisted & Independent Living

Versa Development | Fort Worth, TX | 3 Stories | Type 5A Construction | 324 Units | Documented in AutoCAD


Senior living facility with approximately 220 Independent and 104 Assisted living quarters. The challenge was developing a Prairie Style language for this large scale multi-unit development.


After designing this in Sketchup and Rendering in Lumion, I managed a team of 2 to produce construction exhibits for this project.

Renderings

Modeled and Rendered in Sketchup

click to enlarge

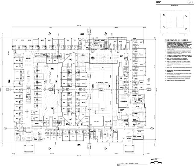
Construction Drawings

Documented in AutoCAD

click to enlarge

SITE PLAN

EXTERIOR ELEVATIONS

EXTERIOR WALL SECTIONS

LEVEL 1 PLAN

EXTERIOR ELEVATIONS

EXTERIOR WALL SECTIONS

ENLARGED PLAN

EXTERIOR ELEVATIONS

EXTERIOR ELEVATIONS

TYPICAL INTERIOR WALL SECTIONS

ENLARGED PLAN