Portfolio of Bruce Allen Williams

MUELLER IV

AMLI Development | Austin, TX | 5 Story Wrap | Types IIIA and IIA Construction | 389 Units | Documented in Revit


This project was almost completely designed before I took over. I added a few touches to simplify forms but the original designer did an excellent job on the building plans as well as with layering different materials to create texture while keeping a clean and modern overall design language.


Special attention to detailing was needed because the Architectural board for this Austin district requires all windows to be recessed from the exterior building plane. Austin amended Building Code removes the exception to rate exterior walls from just the interior side with adequate separation distances so our Structural engineer took care to bear roof loads on side walls in order to reduce the amount of exterior sheathing needed. Double sheathing was indicated along the inside of units at exterior load bearing walls. An emergency generator was required in order to use the Elevator as an Accessible Means of Egress for this 5-story open, non-sprinkled garage.


After rendering this in Lumion I put the Revit model together and managed a team of 2 to produce construction exhibits. Construction is scheduled to be complete mid 2024.

Photos

Click to Enlarge

Entry Corner + Sky Lounge

Main Entry Corner

Pool Court A

Renderings

Modeled in Revit | Rendered in Lumion

click to enlarge

SOUTHEAST PERSPECTIVE

EAST PERSPECTIVE

SOUTH PERSPECTIVE

WEST PERSPECTIVE

NORTH PERSPECTIVE

NORTHEAST PERSPECTIVE

Construction Drawings

Documented in Revit

click to enlarge

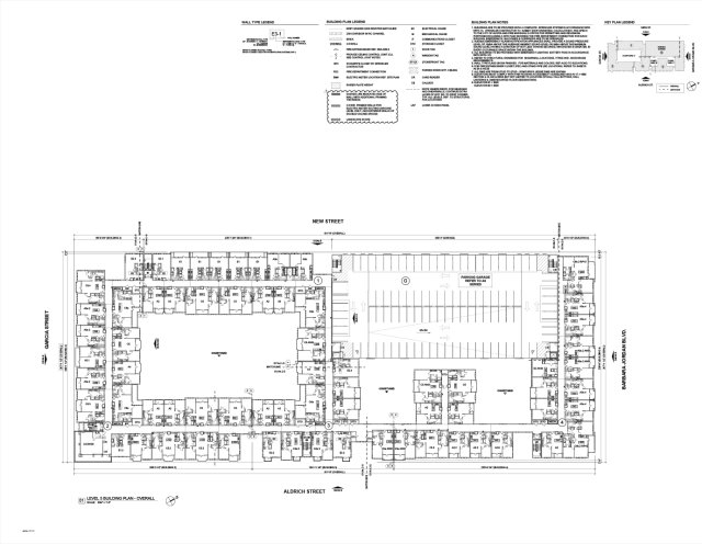
SITE PLAN

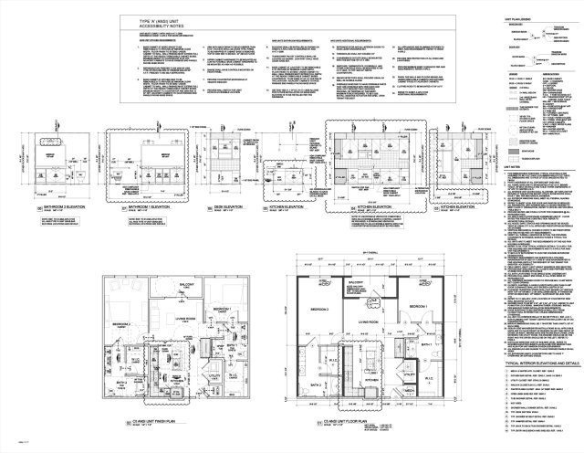
2BR UNIT PLAN

ENLARGED FOUNDATION PLAN

ENLARGED ROOF PLAN

ENLARGED ELEVATIONS

STAIR PLANS AND SECTION

EXTERIOR WALL SECTIONS

INSET BALCONY DETAILS

MOCKUP PLANS, ELEVATION, PERSPECTIVES

LEVEL 1 BUILDING PLAN

OVERALL ROOF PLAN

ENLARGED BUILDING PLAN

ENLARGED ELEVATIONS

TYPICAL INTERIOR WALL SECTIONS

EXTERIOR WALL SECTIONS

WINDOW FLASHING DETAILS

1BR UNIT PLAN

LEVEL 5 BUILDING PLAN

ENLARGED BUILDING PLAN

OVERALL ELEVATIONS

STAIR PLANS AND SECTION

TYPICAL INTERIOR WALL SECTIONS

EXTERIOR WALL SECTIONS

WINDOW DETAILS