Portfolio of Bruce Allen Williams

WELLS BRANCH

Alamo-Manhattan | Austin, TX | 4 Story (Split Level Wrap and Donut Bldgs) | Types VA & IIA Construction | 317 Units | Documented with Revit



Midcentury Modern "in Austin" was the theme during original talks but I steered toward Hillcountry Modern and the client immediately approved. My preference was an exagerrated juxtaposition of extremely warm and vibrant wood tones against muted monotone stucco and limestone but in-house critiques asked for less orange.


Height restrictions are severe in this area the main design challenge was to to create vertical movement while designing with low flat roofs and no parapets. We split the buildings a full level in order to minimize the cut/fill needed on this steeply sloped site.


After designing this in Sketchup and rendering in Lumion I put the production model together in Revit and am managing a team of 1 intern to produce construction exhibits . We've submitted Permit drawings and expect to Issue for Construction by early November.

Renderings

Modeled in Revit | Rendered in Lumion

drag for day vs dusk

Construction Drawings

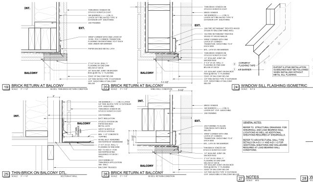
Documented in Revit

click to enlarge

SITE PLAN

BUILDING 3 ELEVATIONS

BUILDING 1 ELEVATIONS

TYPICAL INTERIOR WALL SECTIONS

BUILDING 2 AND GARAGE ELEVATIONS

EXTERIOR WALL SECTIONS