Portfolio of Bruce Allen Williams

Burnett Lofts

Catalyst Development | Fort Worth, TX | 5 Story Wrap and Podium | Types 3A & 2A Construction | 371 Units | Documented with AutoCAD


Tight lot lines, proximity to a TxDOT off-ramp and moderate site slopes were a challenge for this Fort Worth development. I was able to utilize existing grading to allow for a tall retail volume. After permit the client kept things interesting by adding a 5th level to this project.


Early discussions established a transitional design language with traditional accents. Our client (a former head of Architectural design with an international Architecture firm) approved these renderings early on though additional attention was added to detailing the Retail building.


I managed a team of 2 to design and produce construction exhibits for this project. Construction is scheduled to be complete late 2022.

Renderings

Modeled in Sketchup | Rendered in Lumion

click to enlarge

Southwest Corner


West Perspective

Paseo View

Retail Perspective

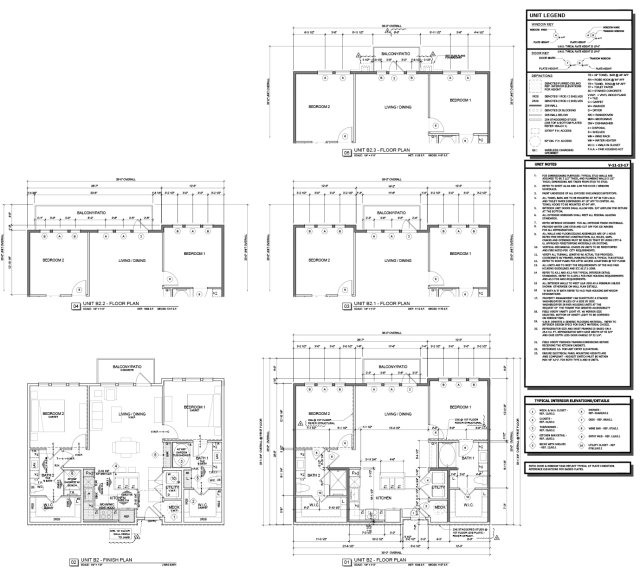
Construction Drawings

Documented in AutoCAD

click to enlarge

Site Plan

Level 1 Building Plan

2BR Unit Plan

Elevations

Premier Corner Unit Plan

Elevations