Portfolio of Bruce Allen Williams

MUELLER III | TC6 South Parcel

AMLI Development | Austin, TX | 5 Story Wrap | Types IIIA and IIA Construction | 289 Units | Documented in Revit


The exterior of this project was designed by a previous Architect who had trouble adhering to the rules of thumb expected in design for wood-framed construction. The challenge for us was to keep a majority of the exterior design language while making the building plans work for the stacking expected in wood framed construction while meeting the client's program needs as well as solving egress and height restriction concerns.


Portions of this wrap building needed to be 3-stories in order to meet proximity slope requirements. Special attention to detailing was needed because the Architectural board for this Austin district requires all windows to be recessed from the exterior building plane. Austin amended Building Code removes the exception to rate exterior walls from just the interior side with adequate separation distances so our Structural engineer took care to bear roof loads on side walls in order to reduce the amount of exterior sheathing needed. Double sheathing was indicated along the inside of units at exterior load bearing walls. An emergency generator was required in order to use the Elevator as an Accessible Means of Egress for this 5-story open, non-sprinkled garage.



After modeling this in Revit, I managed a team of 1 and produced construction exhibits for this project. Construction is scheduled to be complete mid 2023.

Site Photos

click to enlarge

SOUTH VIEW 1

SOUTHEAST CORNER

SOUTH VIEW 2

SOUTH VIEW 3

TRASH AND LOADING

MAIN ENTRY AND LIVE WORK UNIT VIEW

GARAGE AND AMENITY ENTRY

LIVE-WORK UNITS

SOUTH FACING 2BR UNIT STACK

SOUTH VIEW 4

TRASH AND LOADING

Renderings

Modeled in Revit | Rendered in Lumion

click to enlarge

SOUTH PERSPECTIVE

NORTH PERSPECTIVE

STREET VIEW BETWEEN NORTH AND SOUTH PARCEL

Construction Drawings

Documented in Revit

click to enlarge

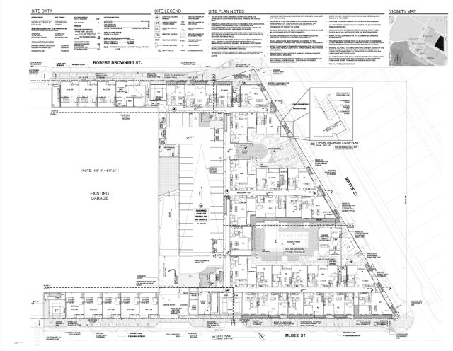
SITE PLAN

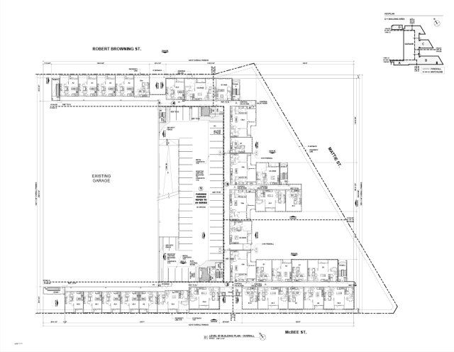
LEVEL 3-4 BUILDING PLAN

ELEVATIONS

TYPICAL INTERIOR WALL SECTIONS

UNIT PLAN

LEVEL 5 & LOWER ROOF PLAN

ELEVATIONS

EXTERIOR WALL SECTIONS

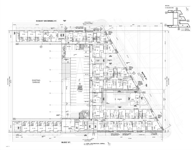
LEVEL 1 BUILDING PLAN

UPPER ROOF PLAN

TYPICAL INTERIOR WALL SECTIONS

CABANA PLANS AND PERSPECTIVES