Portfolio of Bruce Allen Williams

MUELLER III | TC5 North Parcel

AMLI Development | Austin, TX | 8 Stories w/ Elevated Slabs and Podium | Types IIIA and IA Construction | 271 Units | Documented in Revit


The exterior of this project was designed by a previous Architect who had trouble adhering to the rules of thumb needed in designing for wood-framed construction. The challenge for us was to keep a majority of the exterior design language while making the building plans work for the stacking expected in wood framed construction while meeting the client's program needs as well as solving egress and height restriction concerns.


Special attention to detailing was needed because the Architectural board for this Austin district requires all windows to be recessed from the exterior building plane. Austin amended Building Code removes the exception to rate exterior walls from just the interior side with adequate separation distances so our Structural engineer took care to bear roof loads on side walls in order to reduce the amount of exterior sheathing needed. Double sheathing was indicated along the inside of units at exterior load bearing walls. Portions of this wrap building needed to be 3-stories in order to meet proximity slope requirements.


I managed a team of 2 and produced construction exhibits for this project. Construction was completed in 2023.


Renderings

Modeled in Revit | Rendered in Lumion

click to enlarge

NORTHWEST PERSPECTIVE

SOUTHWEST PERSPECTIVE

STREETVIEW BETWEEN NORTH AND SOUTH PARCEL

Photos

Click to Enlarge

Main Entry / Leasing / Fitness Deck / Club

Club Amenity

Bird’s Eye – Main Corner

Elevated Pool Court

Elevated Pool Court (Dog Park)

Elevated Court Lounge

Bird’s Eye Elevated Court

Site Photos

click to enlarge

NORTHWEST VIEW 1

WEST CURVED BALCONY CORNER

NORTHWEST CURVED BALCONY CORNER

SOUTHWEST CORNER

Construction Drawings

Documented in Revit

click to enlarge

BLOCK PLAN

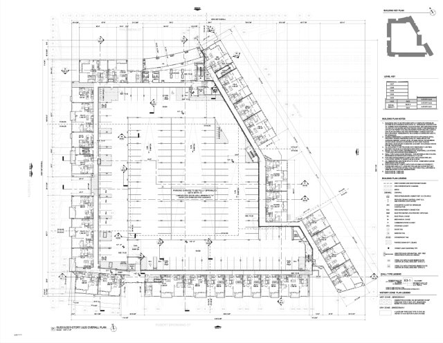
LEVEL 3 BUILDING PLAN

PERSPECTIVE RENDERS

PERSPECTIVE RENDERS

BUILDING SECTIONS

EXTERIOR WALL SECTIONS

ELEVATED PODIUM WATERPROOFING DETAILS

SITE PLAN

LEVEL 3 ELEVATED SLAB PLAN

ELEVATED COURTYARD OCCUPANCY PLAN

OVERALL ELEVATIONS

ELEVATED COURTYARD WATERPROOFING REFERENCE PLAN

ELEVATED SLAB SECTIONS

ELEVATED PODIUM WATERPROOFING DETAILS

FOUNDATION PLAN

LEVEL 4 ELEVATED SLAB PLAN

TYPICAL UPPER LEVEL BUILDING PLAN

BUILDING SECTIONS

EXTERIOR WALL SECTIONS

CABANA ELEVATIONS AND SECTIONS

MISCELLANEOUS TRANSITION DETAILS